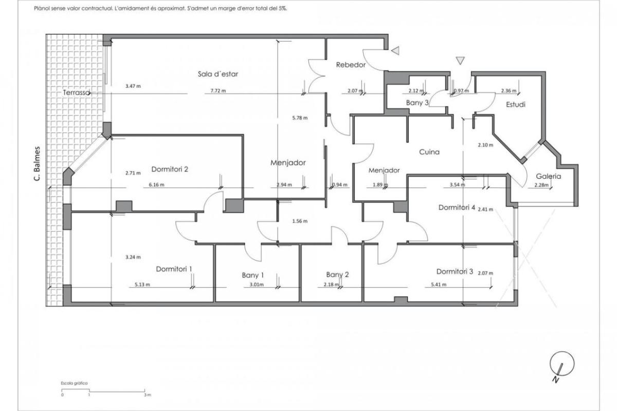
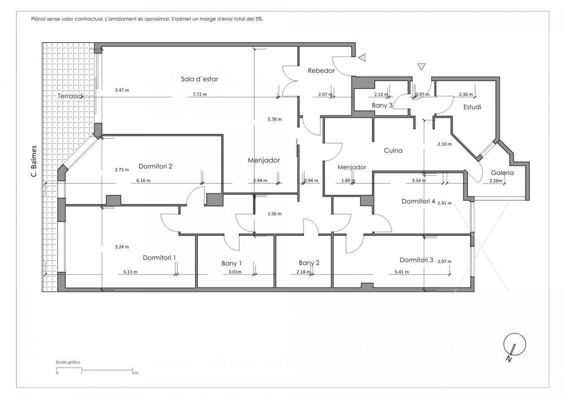
В самом сердце Сан-Жерваси-Бонанова, на улице Бальмес, вы найдете эту квартиру площадью более 150 м², расположенную на верхнем этаже ухоженного здания, сертифицированного ITE (Технической строительной инспекцией). Квартира отличается простором, естественным освещением и большим балконом-террасой. В этом же здании можно приобрести парковочное место. Удобная и функциональная планировка включает четыре спальни и три ванные комнаты, большую гостиную-столовую, отдельную кухню, подсобное помещение и большой балкон-террасу, идеально подходящий для наслаждения видом на город. Высота и расположение потолков обеспечивают исключительное естественное освещение и приятное ощущение простора. Эта недвижимость предлагает городской комфорт и стиль, окруженная магазинами, ресторанами, различными услугами и отличным транспортным сообщением. Внимание, инвесторы: при жилой площади более 150 м² максимальная арендная плата не установлена. Уникальная возможность для тех, кто ищет элегантную, светлую квартиру с идеальной инфраструктурой в самом центре города. Квартира свободна и готова к заселению. Позвоните нам, и мы запланируем визит для осмотра этого прекрасного объекта на рынке недвижимости Барселоны.