+34 631 815 903 Виталий
+34 678 80 82 08 Татьяна
+34 930 378 243
casaproinvest@gmail.com
  • Русский
  • Español

Квартира в продаже Barcelona (Les Corts)

ID (ref): 
HF04282
495 000 €
Описание: 
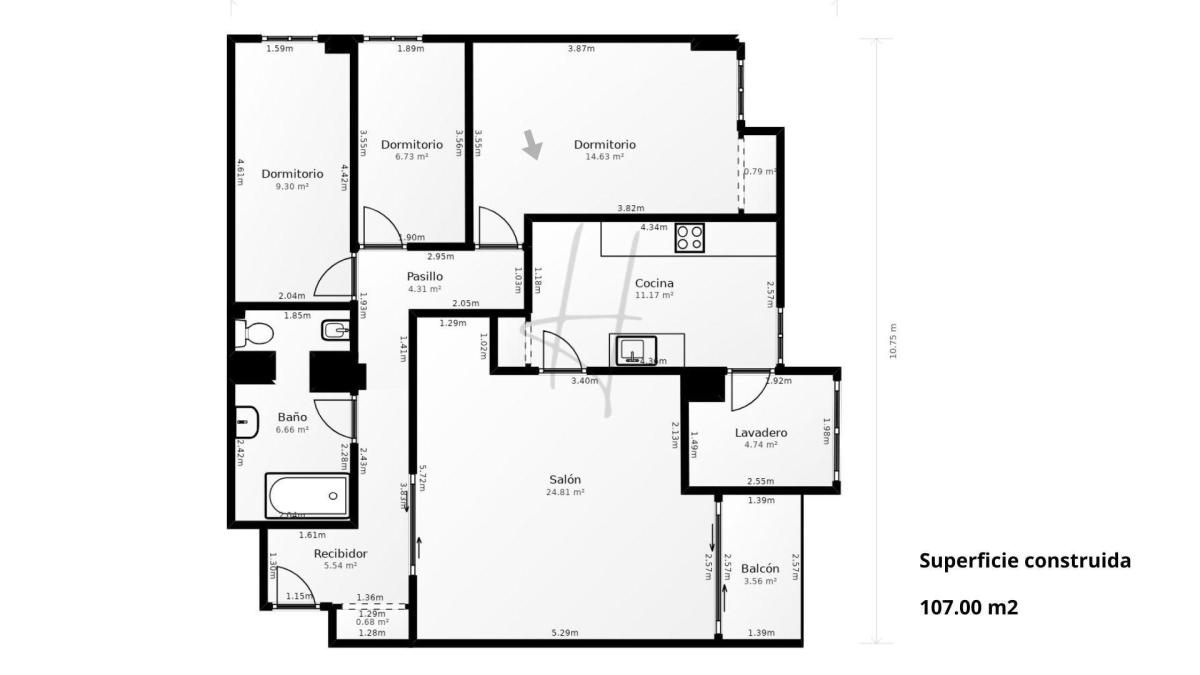
Ваш новый дом в самом сердце Лес-Кортс ждет вас! Откройте для себя эту впечатляющую квартиру, расположенную в одном из самых востребованных районов Барселоны. Квартира площадью 96 м² с ремонтом, ориентированным на простор и естественное освещение, идеально подходит для тех, кто ценит комфорт, стиль и качество жизни. Квартира расположена на первом этаже (второй этаж по меркам США/Великобритании) с панорамным видом на гору Тибидабо. Просторная, элегантная гостиная-столовая с двойными дверями обеспечивает обилие естественного света и пространство для семейного отдыха. Кухня практична и хорошо спланирована. В квартире три большие спальни, которые идеально подойдут как спальни, кабинет или игровая комната (первоначально четыре спальни и две ванные комнаты, отремонтированные для увеличения пространства). Современная ванная комната отличается функциональной и элегантной отделкой. *Пройдена строительная инспекция (ITE) *Коммунальное помещение *Парковочное место (дополнительно 20 000 евро) *Частные общие зоны, идеально подходящие для игр детей или отдыха на свежем воздухе. *Услуги консьержа в здании. *Вентиляторная система кондиционирования (тепло/холод) *Газовое отопление *Решётки безопасности на всех окнах обеспечивают безопасность, не перекрывая свет. Всего в нескольких шагах от знаменитого стадиона «Камп Ноу» (Spotify FCB), в окружении всей необходимой инфраструктуры: супермаркетов, ресторанов, школ, медицинских центров и отличного общественного транспорта.
Дополнительные характеристики: 
Балкон
Встроенные шкафы
Камеры видеонаблюдения
Парковка
Рядом рестораны/кафе
Сад
А вы уже готовы выбрать недвижимость вашей мечты?