+34 631 815 903 Виталий
+34 678 80 82 08 Татьяна
+34 930 378 243
casaproinvest@gmail.com
  • Русский
  • Español

Квартира в продаже Barcelona (Eixample / Sant Antoni)

ID (ref): 
LLAR1696
440 000 €
Описание: 
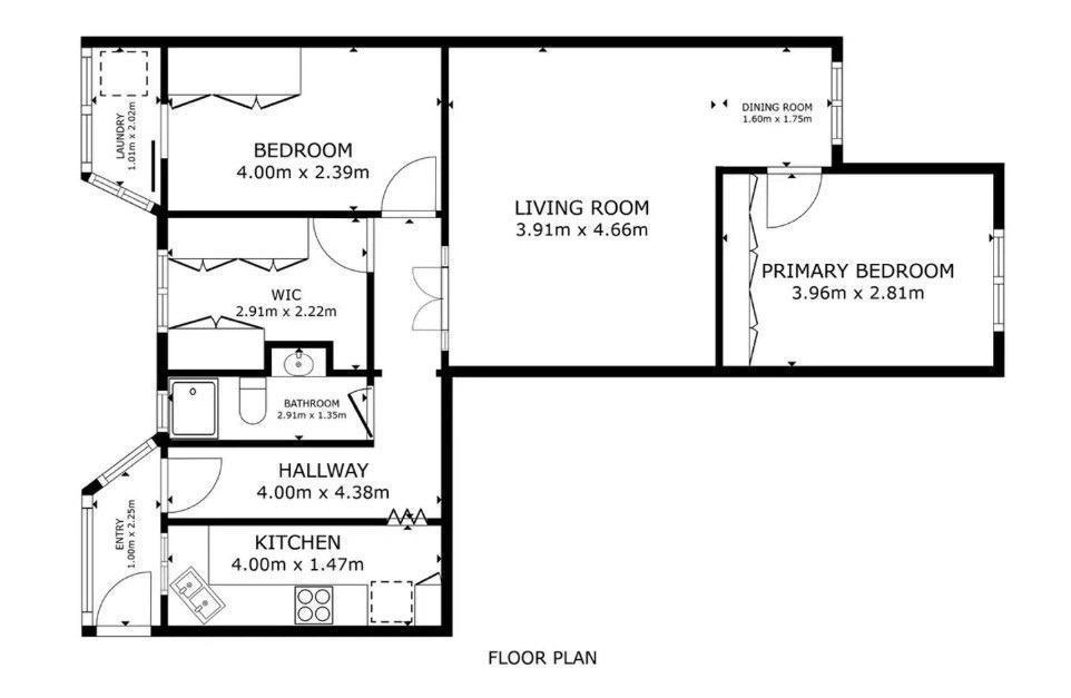
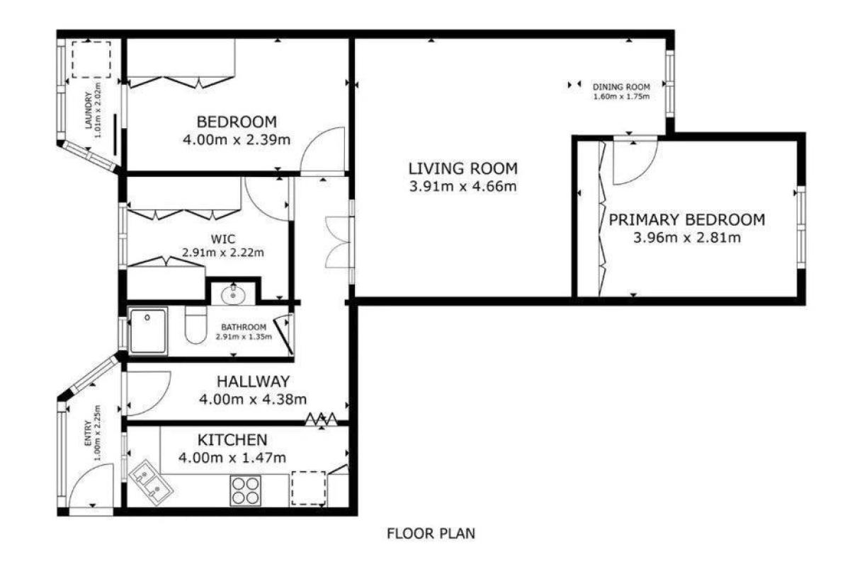
Если вы ищете свой постоянный дом в районе Эшампле, где царят свет и спокойствие, то эта квартира может быть тем, что вам нужно. Расположенная на улице Алдана, в здании с лифтом, эта квартира находится на высоком этаже и выходит окнами в большой внутренний двор, что гарантирует обилие естественного света и очень тихую атмосферу. ✨ Удобная и сбалансированная планировка: гостиная-столовая с двумя отдельными зонами (гостиная и столовая), три спальни: одна с двуспальной кроватью и две с односпальными кроватями, отдельная кухня и полностью оборудованная ванная комната. Квартира в отличном состоянии, недавно покрашена, с новыми полами и дверями, и современная и гостеприимная атмосфера, которая заставляет вас захотеть переехать с первого дня. В ней также есть чердак, предварительная установка для отопления и сплит-система кондиционирования с тепловым насосом в гостиной-столовой, а также поперечная вентиляция, которая обеспечивает прохладу и комфорт круглый год.
Дополнительные характеристики: 
Встроенные шкафы
Доступна ипотека
Лифт
А вы уже готовы выбрать недвижимость вашей мечты?